Slipp fantasien løs: Sett forfra kan blokk B1 se ut som et stolt skip på vei sørvestover mot Hafrsfjord. Fra spesielt balkongene i baugen er det fantastisk utsikt når du kommer oppover på dekkene. Alle de 20 lugarene har gode private uteplasser. Det store utvalget i størrelser og smarte løsninger gjør at vi håper mange vil komme om bord.
- Visning hver tirsdag, hele dagen. Meld deg på!
Parker i kjelleren – ta heisen opp
Parkeringsplasser og sportsboder er plassert i garasjeanlegget i kjelleretasjen. Herfra tar du enten heisen eller trappa til din leilighet. Valget er avhengig av hvilken etasje du bor i, hvor tungt du bærer eller hvor opptatt du er av å aktivere beinmuskulaturen. Tørrskodd og enkelt kommer du ansett hjem. Gjesteparkeringen ligger like i bakkant av blokka.
Stor spennvidde
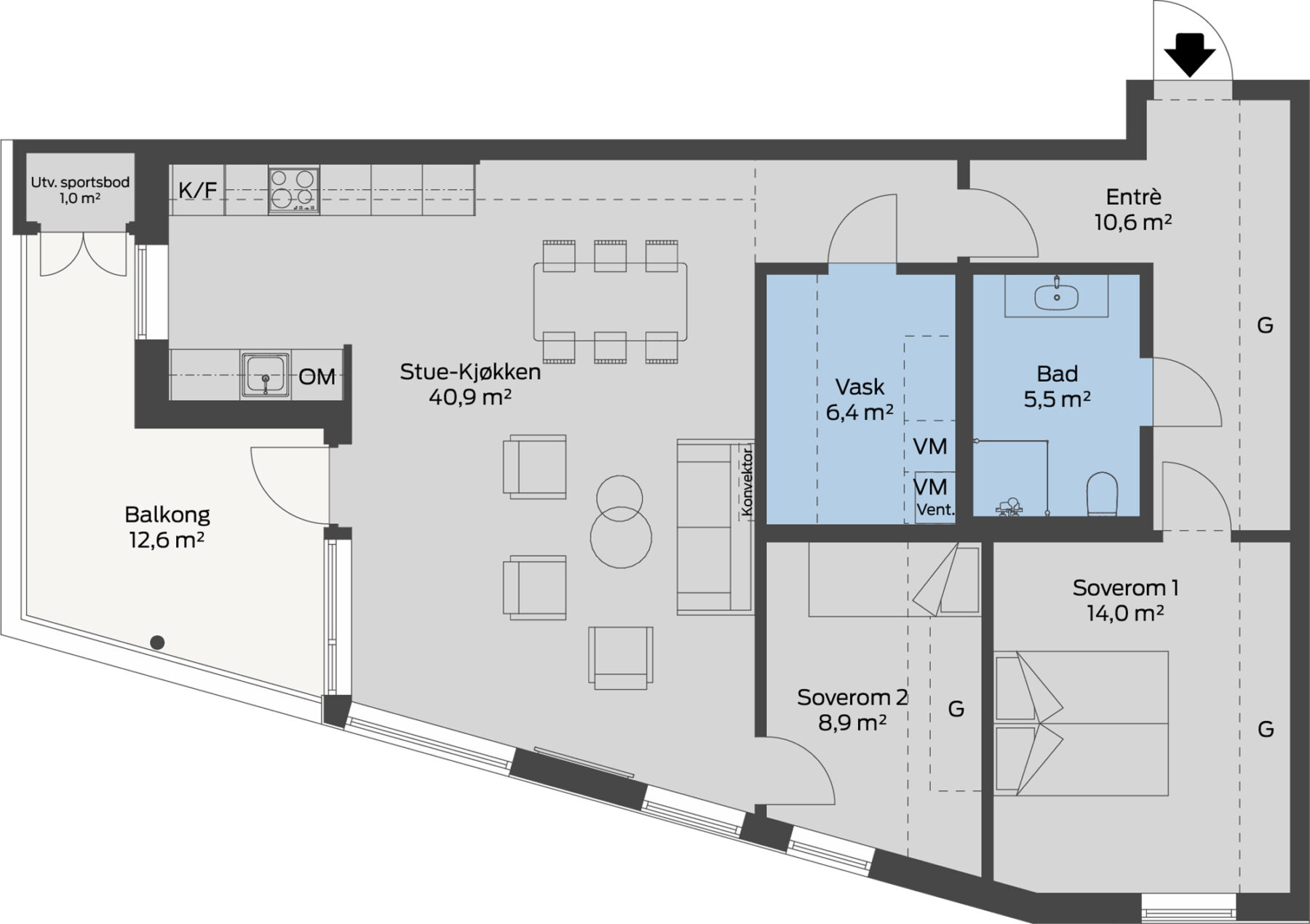
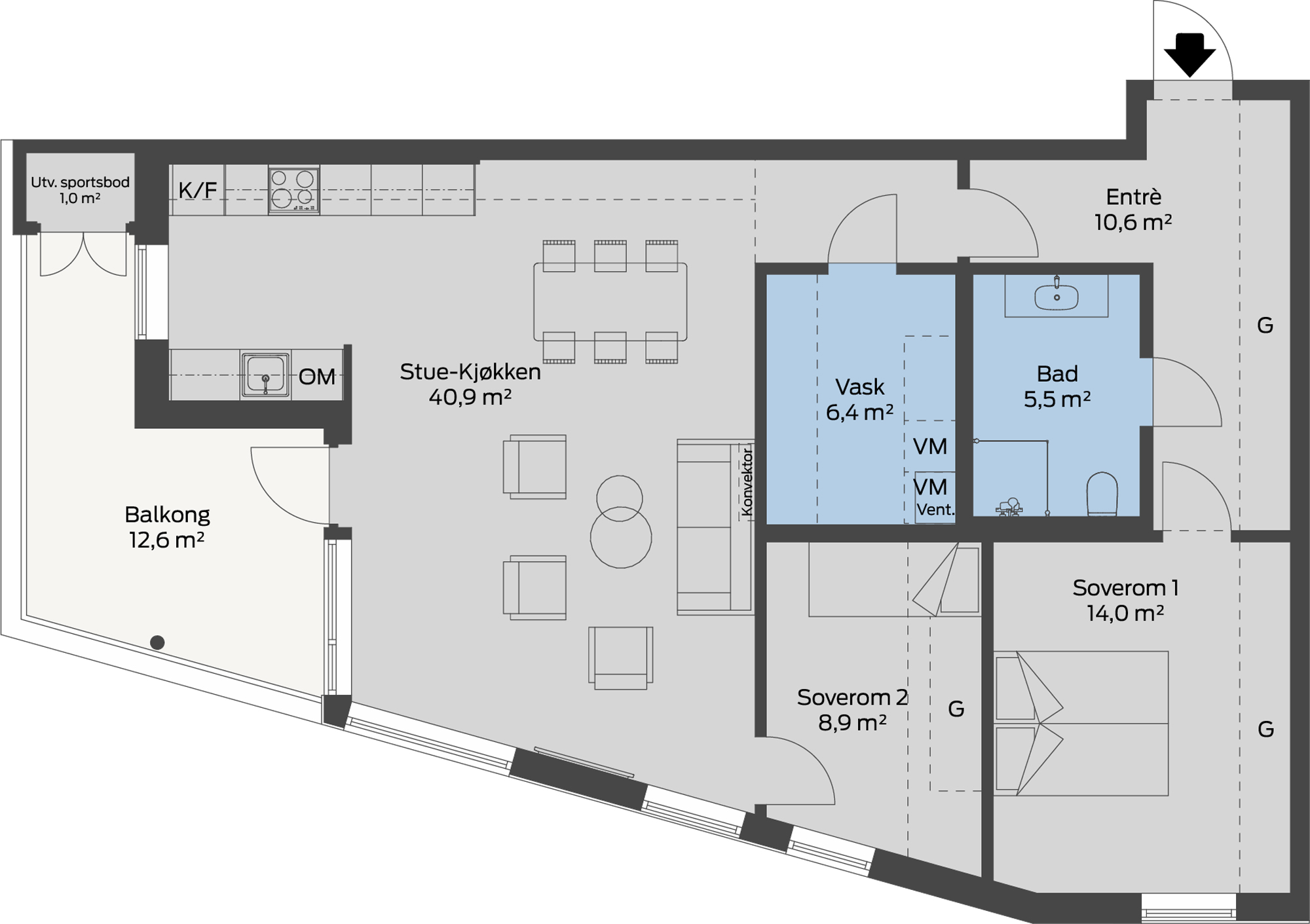
I blokka er det leiligheter for alt fra førstegangskjøpere til godt voksne par som har fått nok av vedlikehold på alt for store eneboliger. Det store utvalget gjør at du må studere plantegningene for å finne din favoritt, men vi kan fortelle litt om de fem mindre, seks mellomstore og ni leilighetene som er enten store eller svært store.
Gode plasser ute
Fem av de syv leilighetene i første etasje har terrasse, mens alle andre har balkong. Terrassene er mellom 8 og 15 kvadrat. Balkongene varierer fra 11 til 46 kvadrat i størrelse. De aller fleste har en praktisk bod på sin private uteplass som vender mot sørøst, sørvest eller nordvest. Gode solforhold får alle, mens utsikt og luftighet varierer fra bra til fantastisk. Det kommer an på leilighetens plassering i blokka.
Smart løst inne
Leilighetene er generelt smart løst. De er lettstelte, lyse og moderne. Og jo flere kvadrat, jo flere kvaliteter kan vi putte inn. Åtte av leilighetene har for eksempel to bad. I elleve boliger det separat vaskerom, og i flere andre er vaskeavdelingen skjermet med halvvegg fra badet ellers. Fem av leilighetene har WC i tillegg til badet sitt. Flere av de større leilighetene har master bedroom med privat bad og walk-in garderobe. Det er mulighet for tre soverom i åtte av leilighetene. I flere er valget to soverom og to stuer eller tre soverom og en stue. Det er opp til deg om det er antall oppholdsrom eller soverom som er det viktigste.
Toppen er toppen
De to leilighetene i fjerde etasje er av den eksklusive sorten. Fra de store balkongene er det fantastisk utsikt i tre av fire himmelretninger. Rett fram ser du mot Hafrsfjord og Jåsundhalvøya, det vil si sørvestover med løfte om mange timer sol. Den ene av de to toppleilighetene har også en balkong nummer to, med retning sørøst og morgensol. Stue- og kjøkkenrommet er lyst og romslig. Boligene har også noe så sjeldent som hver sin kjempestore bod. Lagringsplass får man sjelden nok av. Standarden er oppgradert på en rekke områder. Leilighetene har ekstra fin kjøkkenmodell med øy, helfliste bad med 60×60-fliser, 1-stavs hvitpigmentert eikeparkett, vannbåren gulvvarme, listefrie ytterdører og vinduer.
Gjør dine egne valg
I et nybygg kan du gjøre mange egne valg. Velg flisene dere har drømt om til badet, kanskje andre fronter på kjøkkenet, eller akkurat den fargen på veggen dere vil ha. Jo tidligere du bestemmer deg, jo flere valgmuligheter er det.
Meld din interesse
Lyst til å vite mer om Nore Sunde BK1 og området rundt?
Ta kontakt med selgerne våre.