Øster Hus

625 meter over havet, mellom Sinnesvatn og Solheimsdalen, ligger Furåsen. Rik på sol og snø, lunt og rolig, klar til å ta i mot deg og flokken din. Utenfor hyttedøra står naturopplevelsene og venter på dere. I gnistrende skispor og strabasiøse toppturer om vinteren, langs klukkende bekker om sommeren, kanskje med fiskestang og myggspray i sekken.

Hytter som hører til naturen

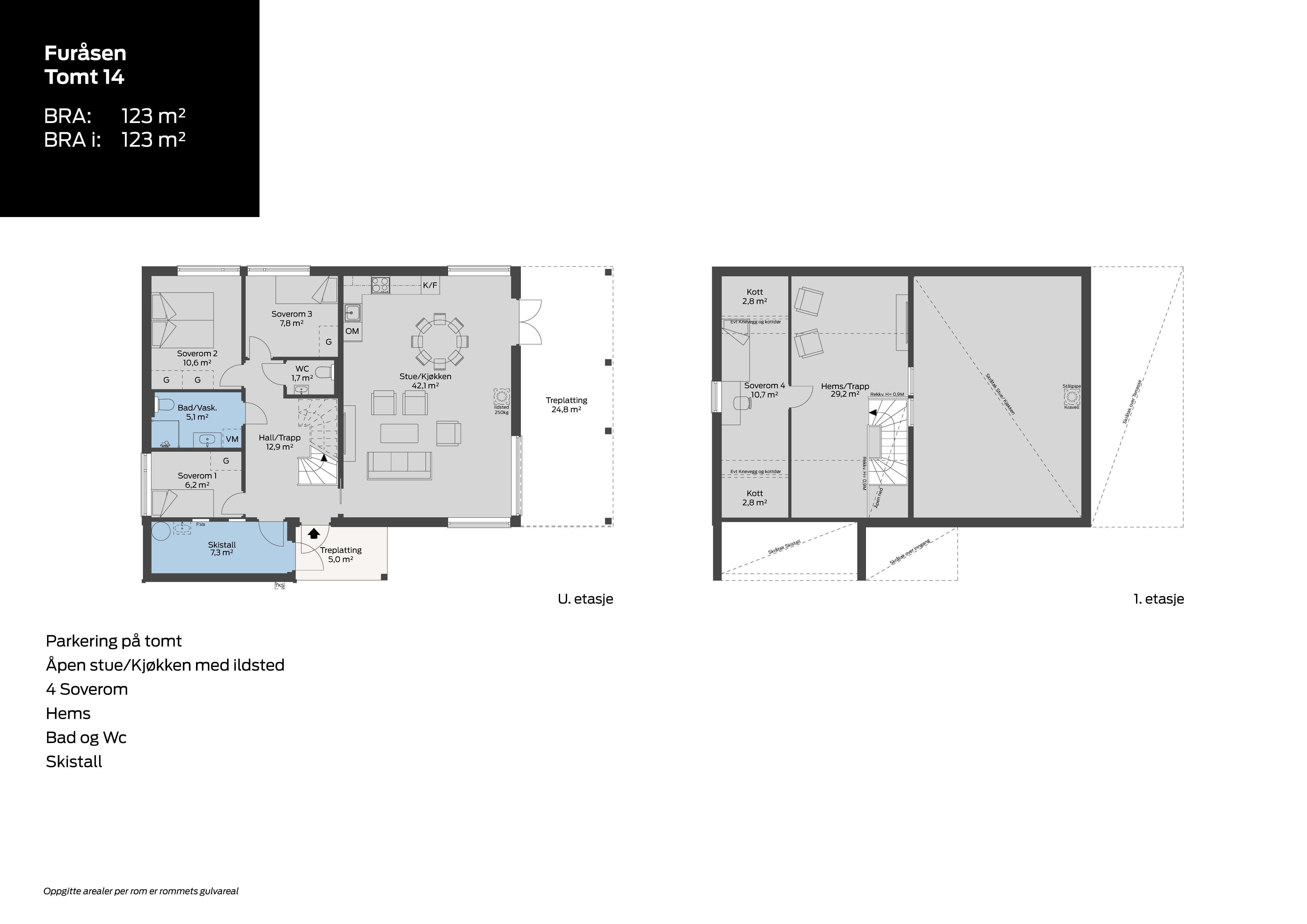
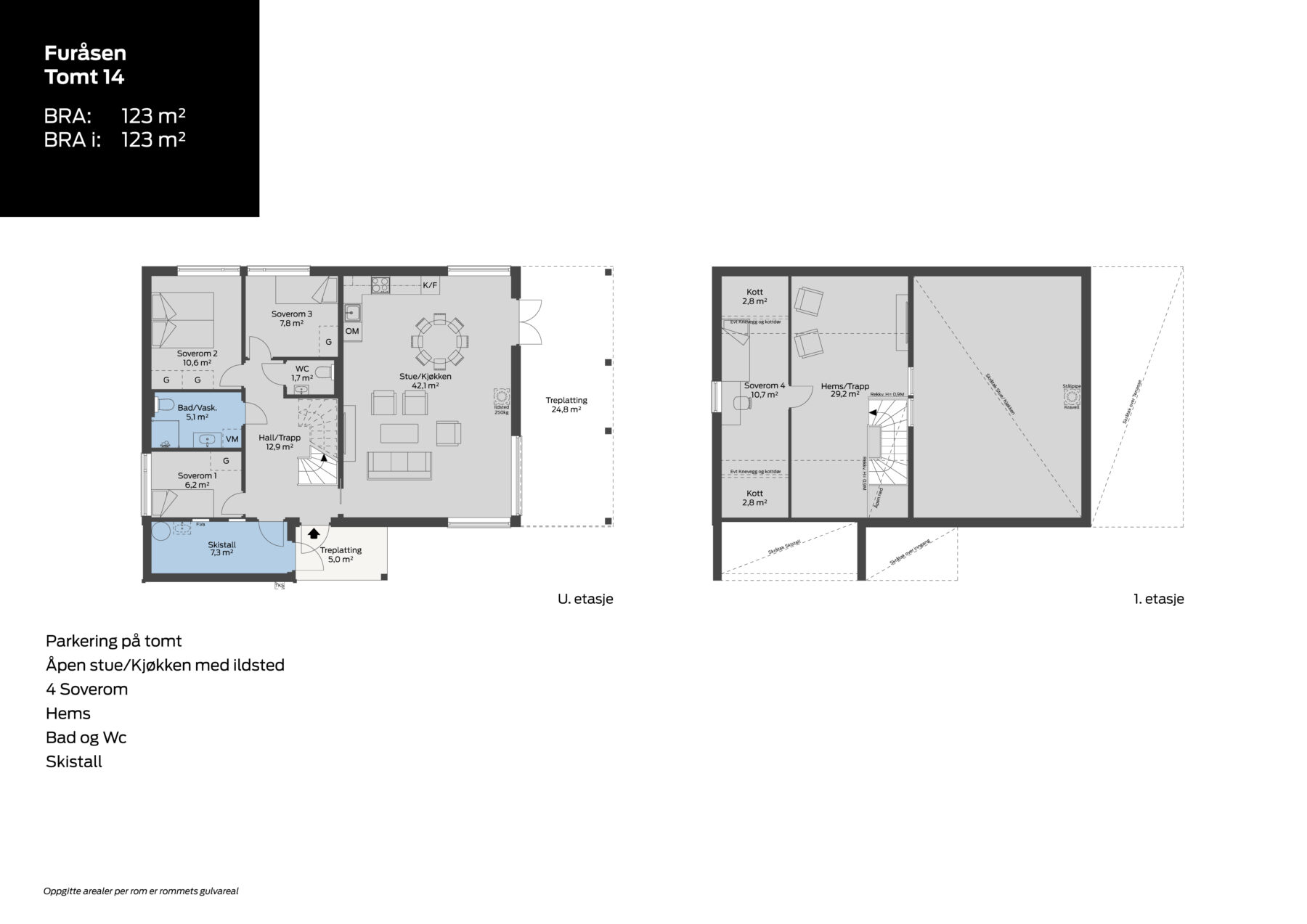
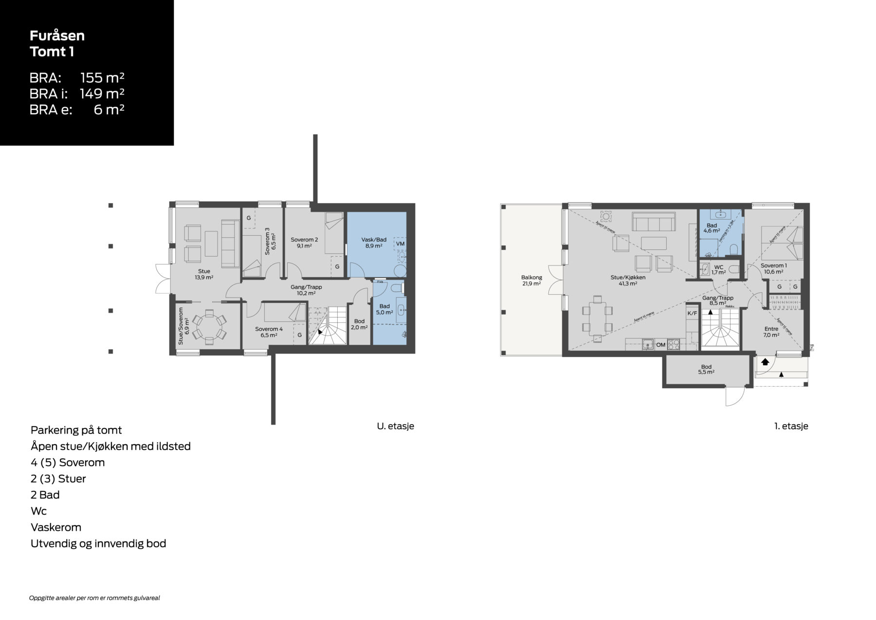
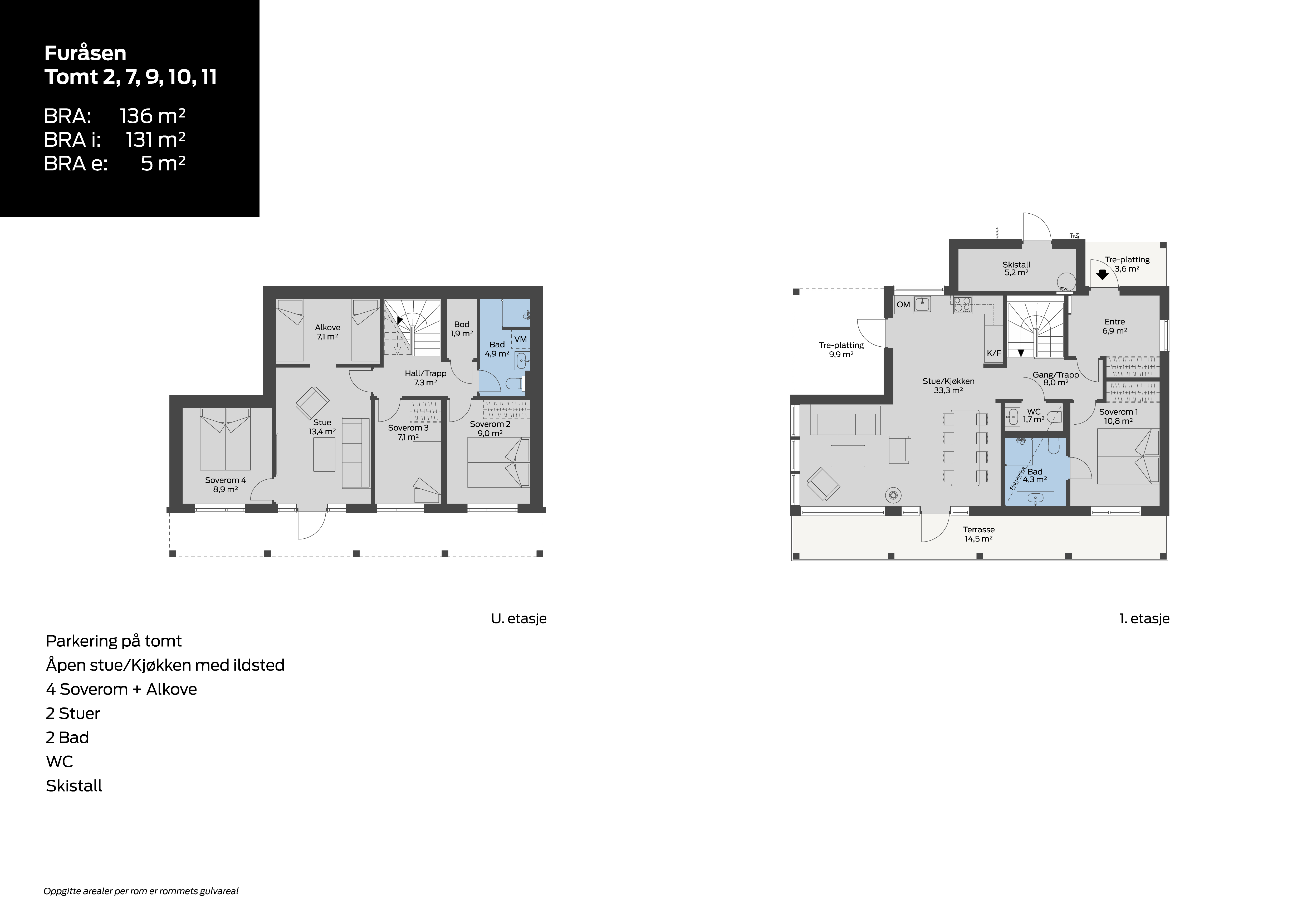
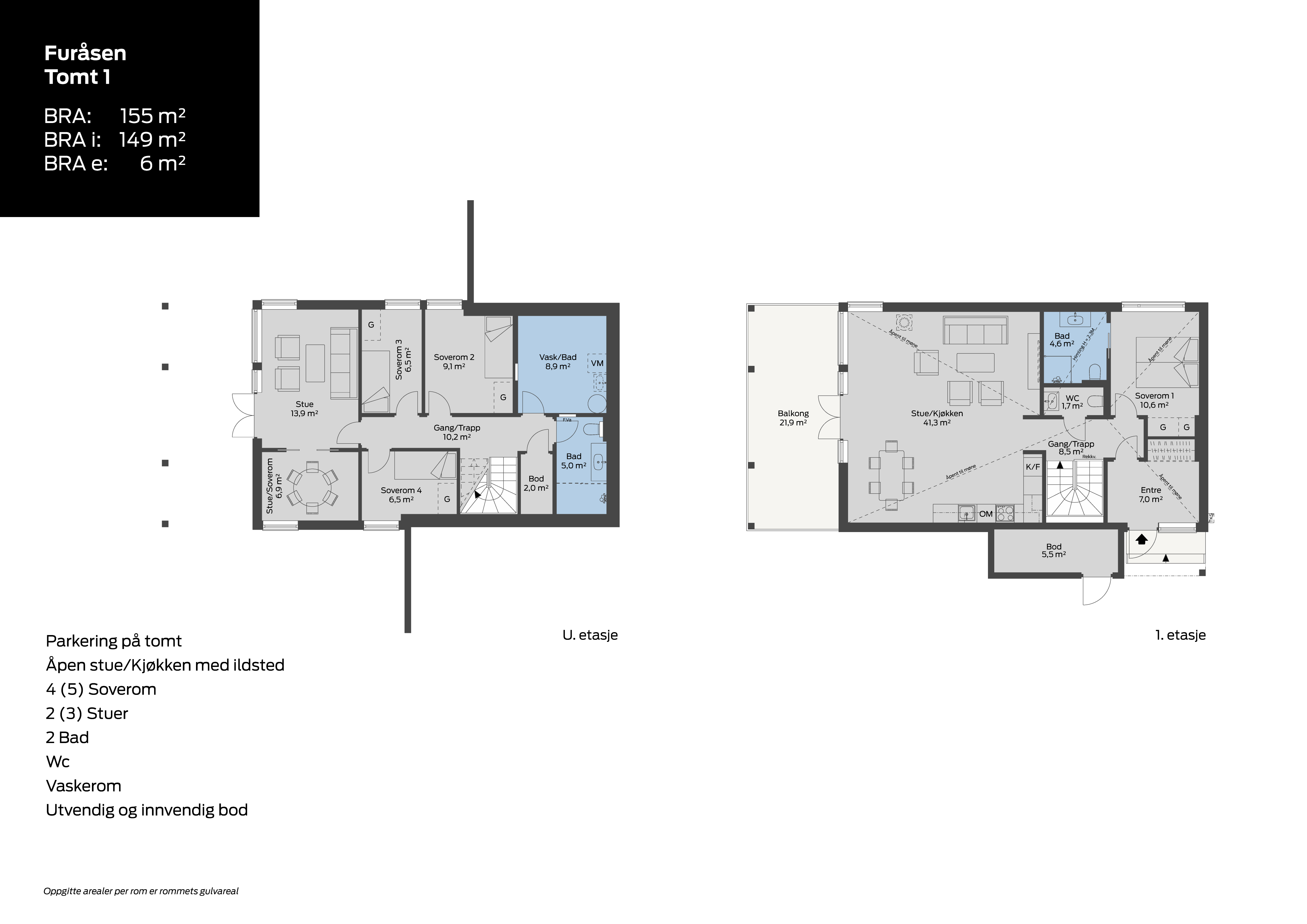
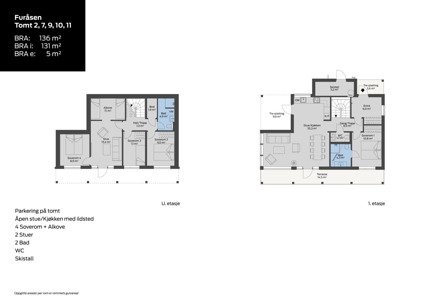
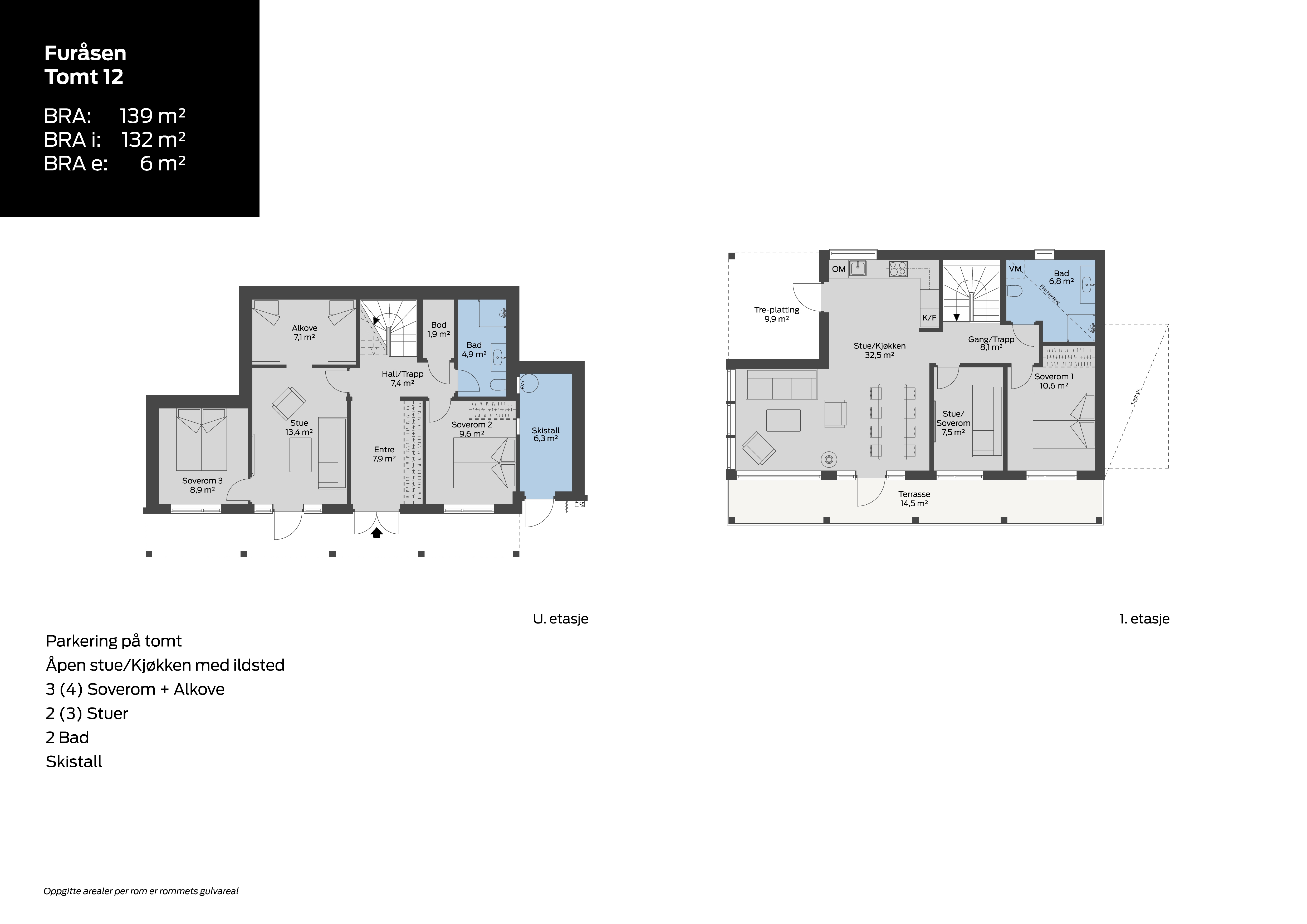
Hyttene er tegnet av Sjo Fasting Arkitekter. Kraftig kledning, solide søyler og torvtak. Innendørs gir klassisk furupanel og eikeparkett den gode lune stemningen. Hyttene er nennsomt plassert i terrenget, med gode solforhold og utsikt mot både sør og vest. For å utnytte kvalitetene til hver enkelt tomt best mulig, har vi utviklet flere ulike modeller. Finn din favoritt!

Plass til mange, rom for å være i fred

De solide hyttene på Furåsen er en god base for storfamilien. Alle hyttene har løsninger som gjør at de fungerer godt både når du skal samle mange personer, og når du vil være alene eller sammen med bare noen få. Med 4 eller 5 soverom kan alle sove like godt og våkne uthvilte og klare for dagens eventyr. 2 bad gjør at ingen trenger å skynde seg før de har fått morgenkaffen.

Vis solgte boliger

    Meld din interesse

    Dette skjemaet er beskyttet av reCAPTCHA, og Googles personvernerklæring og vilkår for bruk gjelder.

    Lyst til å vite mer om Furåsen og området rundt?
    Ta kontakt:

    Einar Østerhus

    Salgs- og markedsansvarlig

    Tlf: 46 82 98 18

    Lokasjon

    Lukk